- Разновидности печного оборудования по движению газов
- Преимущества системы
- Разновидности печей
- Современные русские печи из кирпича
- Проекты домов с печным отоплением в два этажа.
- Самые простые планировки под печное отопление.
- Двухэтажная печка своими руками – порядовки
- Современные русские печи из кирпича
- Разновидности печек
- Достоинства печного отопления
- Экономия
- Интерьерное дополнение
- Сруб с печкой под ключ: выбор места для печи?
- Важные правила установки и эксплуатации печного оборудования
- Коротко о главном
- Современная русская печь своими руками: рекомендации
- Преимущества
- Прочность.
- Декор
Разновидности печного оборудования по движению газов
Кирпич хорошо сохраняет тепло и долго передает его в окружающее пространство, однако этого недостаточно для эффективного отопления кухни или спален. Увеличение теплоемкости достигается благодаря особым камерам, которые способствуют нагреву стенок и обеспечивают более эффективное отопление. Это особенно актуально для современных домов с печным отоплением.
Если не вдаваться в технические подробности, движение дыма по специальным каналам происходит следующим образом:
- в процессе сгорания дров или угля образуются газы, имеющие предельно высокую температуру. Под действием физических законов они поднимаются вверх, но задерживаются из-за препятствий в виде перемычек, задвижек;
- дым начинает распространяться по газоходам, прогревая стенки;
- температура продуктов сгорания снижается. Они переходят в отводящую трубу.
Если каналы проложены горизонтально, на остывание тратится меньше времени, чем в аналогах с вертикальными. Причина — небольшая скорость движения воздуха. Неизбежное следствие — неравномерный прогрев помещений.
Если проанализировать все существующие виды печей, предпочтительнее выбирать агрегаты с дымоходами, проложенными снизу вверх. Для перемещения газа не требуются дополнительные усилия. Они неизбежно перемещаются вверх и прогревают окружающее пространство.
Но и оборудование с вертикальным дымоходом не лишено недостатков. Если при наличии горизонтальных каналов сильнее прогревается пространство вокруг топки, то здесь тепло аккумулируется в верхней части. Первый вариант больше соответствует противопожарным нормам.
Еще один важный момент касается печей с вертикальными каналами. Они не должны иметь слишком большую длину. Газ, проходя по ним, будет сильно остывать. Результат — неравномерный прогрев.
В каменках колпакового типа удалось частично нивелировать недостатки, связанные с распределением тепла. Здесь раздельные отводы выходят в единую камеру. Дым проходит через отверстия небольшого диаметра и в колпаке собирается под верхним перекрытием. Продукты сгорания, частично остывают и опускаются вниз. Далее они устремляются в атмосферу, подчиняясь естественным силам природы.
По теплоемкости колпаковые агрегаты лучше аналогов. Их выбирают, если речь идет об отоплении дома значительной площади. Если же нужно обогреть небольшую постройку на даче, достаточно голландки или шведки.
Преимущества системы
Материал, из которого возведен дом, в данном случае не имеет большого значения. Проект дома с печным отоплением можно организовать как в каменном или кирпичном доме, так и в деревянном. Печное отопление обладает рядом преимуществ, которые недоступны в случае других отопительных систем. Если дом возведен из такого материала, как камень, то печное отопление в таком случае будет более эффективным. Это легко объяснить тем, что камень – это такой материал, который обладает свойством собирать тепло.
Для печного отопления подойдут многие виды твердого топлива. К этому списку можно отнести такие виды топлива, как: дрова, торф, картон, уголь, ветки и многое другое. Однако не стоит увлекаться и пичкать печь всем, чем только можно.
Еще одним преимуществом печного отопления является то, что система печного отопления частного дома не зависит от перебоев, связанных с поставками источника тепла или аварийными ситуациями. Печное отопление популярно благодаря тому, что оно работает в автономном режиме. Печь может быть не только основным источником тепла, но и дополнительным. Даже если ваш дом оснащен более современной отопительной системой, печь никогда не будет лишним устройством в доме. Многим нравится обычная печь тем, что она создает удивительную и уютную атмосферу. Разве не приятно собраться всей семьей в холодный зимний вечер у теплого очага? Или создать романтическую обстановку и посидеть вдвоем возле живого огня. Дровяные печи хоть и теряют со временем свою популярность, но еще много лет будут актуальными для большинства владельцев частных или загородных домов.

Печь служит не только источником тепла, она также является прекрасным украшением любого дома
Разновидности печей
Основная классификация подразумевает разделение печей на металлические и кирпичные:
Кирпичная печь – это классический вариант. Кирпич остывает длительное время, поэтому греть такая печь будет даже после того, как потухнет огонь. Каменные печи для дома могут нагреть большой дом в несколько этажей. Раскаленность кирпича невозможна, поэтому обеспечивать защиту стен, потолка и полов не нужно. Печи из кирпича имеют низкую себестоимость, особенно если своими руками по чертежам и схемам делать кладку конструкции. Для постройки нужно выбирать огнеупорный обожженный кирпич, но можно сделать его самостоятельно. Планировка домов с русской печкой требует возведения мощного фундамента, если его не сделать, может произойти перекос здания; Металлическая печь занимает меньше места. Они более эстетичны, можно делать корпус уникальных размеров и форм. Без потребности в ремонте они служат более 50 лет. Комнаты нагреваются достаточно быстро независимо от вида топлива. Цена довольно низкая. Конструкция остывает с такой же высокой скоростью, как и нагревается. Также они имеют высокий риск возникновения пожара, но при соблюдении всех условий эксплуатации, можно об этом не беспокоиться. Не стоит ставить ее возле легко воспламеняющихся предметов и поверхностей
Важно обеспечить защиту керамической плиткой. По типу конструкции наиболее популярны такие виды, как традиционная русская печь, печь-камин и чугунная печь
Существуют еще электрокамины, которые можно установить как в квартире, так и в деревянном доме. Его можно поставить за полчаса. Прибор нагревает помещение и визуализируется пламя
По типу конструкции наиболее популярны такие виды, как традиционная русская печь, печь-камин и чугунная печь. Существуют еще электрокамины, которые можно установить как в квартире, так и в деревянном доме. Его можно поставить за полчаса. Прибор нагревает помещение и визуализируется пламя.
Современные русские печи из кирпича
В настоящее время конструкция традиционной русской печи насчитывает несколько вариантов выполнения, которые зависят от бытовых потребностей той или иной семьи.
Итак, современные проекты печей для дома бывают:
- С плитой и подтопком. Плиты, которые являются шестком печи, встраивают в массив конструкций. В классическом варианте они остаются глухим пространством.
- С камином. При таком варианте возможно вынесение задней стенки русской печи в другую комнату посредством перегородки. Такие конструкции считаются довольно-таки практичными, так как не нуждаются в обустройстве вывода дополнительной дымовой трубы и отдельного фундамента под камин.
Кирпичная печь-камин в дачном доме
- С самостоятельной топкой и топчаном. В конструкции русских печей всегда имеется место под большую лежанку, где свободно могут разместиться 2-3 человека. В современных вариантах лежанка уменьшена, а также добавлен приставной топчан, который восполняет этот недостаток функциональности. Он оснащён полноценной лежанкой, выступая при этом в качестве самостоятельного отопительного элемента.
Проекты домов с печным отоплением в два этажа.
Каждый из предыдущих примеров планировки одноэтажного дома можно сделать двухэтажным — только продумать место, куда встроить лестницу. Конкретная планировка зависит от пожеланий хозяев, состава семьи, стиля жизни и работы взрослых, возраста детей и многих других нюансов. Поэтому вариантов может быть масса.
Возьмем для примера один из вариантов. Например дом для семьи с двумя или тремя быстро растущими детьми. 😉 Нужна большая студия для семейного общения на первом этаже, одна спальня (кабинет) внизу. Большая ванная комната внизу и небольшой санузел на втором этаже. Две спальни и большая игровая зона в холле на втором этаже.


По моему опыту жизни с детьми (четверо детей), нужно очень внимательно подходить к игровым зонам и не всегда получается удобно обустраивать их в спальнях. Когда дети подрастают им нужно иметь возможность в любой момент выйти из игры и уйти заниматься в тихое место за столом. К тому же дети из разных комнат должны иметь возможность поиграть вместе, а не ходить «в гости» друг к другу. Если У вас мало детей или еще нет — это кажется несущественным… но если четверо или пятеро… жизнь уже предстает в другом свете.
Очень неудобно если игровая зона совмещена с зоной отдыха. Потому как в обществе с детьми особо не отдохнешь. К тому же неудобно если дети играют на кухне или в столовой зоне. Поэтому очень удобно оборудовать на втором этаже место досуга для детей. Сделать надежные ограждения лестницы и калитку с «взрослым» замком. Либо вообще закрытый лестничный пролет с дверью.
Данный пример иллюстрирует наверно максимально большой дом, который можно отопить печью. Но и то, только если он грамотно и хорошо утеплен. получается что грязная площадь такого дома 125 квадратов.
Предваряя Ваши возможные возражения — скажу — это реально отопить такой дом печью. Примеры есть из нашего опыта, повторюсь — главное это утепление дома. Семья даже установила потолочные обогреватели в спальнях на втором этаже, но даже не пользовалась ими так как не было надобности…
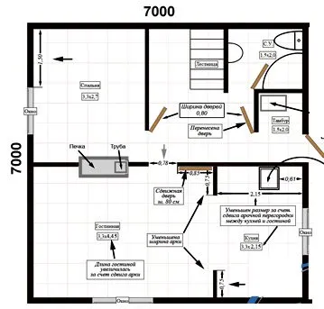
Самые простые планировки под печное отопление.
Что может быть проще чем дом 6*6? Да самой востребованной планировкой для печного отопления является дом 6*6. Но это не был бы дом для постоянного проживания, если не сделать в нем мансарду. При этом лестница — закрытая, для регулировки тепла.
Конечно можно жить в доме 6*6 метров, но если в семье есть ребенок или не один… то лучше рассматривать такой же дом, но с мансардой. Так давайте посмотрим на это:
Самая простая планировка такого дома — студия внизу: кухня с гостиной и большая спальня в мансарде. Такой дом, по моему мнению, может быть хорош для семьи с одним или двумя детьми. К тому же не помешают и большие сени — пристрой. В них можно либо не поддерживать высокую температуру, либо встроить не сильно мощные электрополы или небольшой конвектор на термодатчике. Так же можно, для удобства, разместить в сенях ванную. В таком случае точно надо делать сени хорошо утепленными и добавлять в ванную электрический теплый пол.
Как вариант, можно встроить печь в ванную, тогда там будет жарко… Но в таком случае меньше тепла будет уходить в дом и печь лучше сделать с избыточной мощностью.
В крайнем случае можно разделить дом на две комнаты, встроить печь в стену, отделив при этом небольшую кухню-столовую с лестницей и спальню на первом этаже. Преимущества таких небольших домов в том что печь можно поставить куда угодно, хоть в центр, хоть в угол. Если печь ладно сложена, равномерно и долго отдает тепло, то она отопит его.
Итак мы разобрали планировку самого простого дома на 72 квадратных метра + сени, например 15 кв. м. Сложнее становится с планировками побольше.
Двухэтажная печка своими руками – порядовки
- Деревенская печь своими руками – фото и схема КАК ПОСТРОИТЬ ДЕРЕВЕНСКУЮ ПЕЧЬ -…
- Печь для казана своими руками – фото Печка для казана из газового…
- Мини печь для казана своими руками (+ ФОТО) МИНИ-ПЕЧЬ С ПОДДУВОМ ДЛЯ КАЗАНА НЕДАВНО…
- Печь в баню из стальной трубы своими руками – чертежи+фото Стальная печь в баню своими…
- Горизонтальная печь для бани своими руками Горизонтальная конструкция банной печки-каменки Печь значительной…
- Камин-печь своими руками – фото и схема КАК СЛОЖИТЬ КАМИН-ПЕЧЬ СВОИМИ РУКАМИ В…
-
Детская двухэтажная кровать своими руками – чертежи Чертежи детской двухъярусной кровати для…
Своими руками › Печи, камины, барбекю › Двухэтажная печь своими руками (порядовки и фото)
Современные русские печи из кирпича
Еще в прошлом столетии невозможно представить себе
проживание в избе без русской
печки. Это было единственным способом отопления собственного дома. Со временем
происходили изменения в конструкции и функциональных особенностях печного
оборудования, но несмотря на это, печь по-прежнему качественно справляется с выполнением своей
задачи.
Современная
печь больше является предметом интерьера дополняющая его, подчеркивая русский
стиль. Правильная кладка и выбор места для установки сооружения – это залог
качественного отопления жилища. Сейчас выпускаются различные модели кирпича,
способные противостоять высоким температурам и аккумулировать жар.
Разновидности печек
Существует не мало разновидностей, имеющих множество
схожестей во внешнем и внутреннем построении, но все-таки они отличаются.
Для монтажа в частный дом, используются следующие отопительные
сооружения:
- Плита и встроенный подтопок. Монтаж плиты
производится в основание конструкции. Классический вариант плиты представляет собой глухое
пространство. - Встроенный камин. Подходит для гостиных,
отдельных кабинетов или залов. Наблюдение за мерцающим пламенем помогает
сосредоточиться на внутренних мыслях и проблемах. Пригоден для встраивания
системы отопления. - Место для отдыха. Представляет собой место для лежания
или продолжительного сна. Больные суставы будут рады теплой постели.
Спальное место
Варочная поверхность. Размещайте сооружения
подобного плана на кухне, где хозяйка готовит пищу для членов семьи.
Достоинства печного отопления
Автономность – главное преимущество печного отопления. Обогрев дома зависит от
качества, функциональности и исправности печи. Нет зависимости от центральной
системы отопления. А значит, отопление дома не будет зависеть от сезонных
отключений и недостаточной подачи тепла по трубам.
Благодаря имеющимся плюсам, печное оборудование
распространено среди частного строительства. Некоторые из владельцев пытаются
устанавливать электрические или газовые системы отопления, после чего разочаровываются
от полученных результатов. Ведь такие виды требуют немалого вложения средств на
ежемесячную оплату. Закупка дров несоизмерима мала в сравнении с другими видами
альтернативного топлива и потому, считается наилучшим вариантом.
Экономия
Правительство РФ, разрешило собирать сушняк, а это в свою очередь позволяет дополнительно снизить затраты. Чтобы не закупать огромное количество дров, можно приобрести каменный уголь. Помимо денежной экономии, он помогает сохранять тепло продолжительное время.
Сбор сушняка
Наличие лежака в верхней части печи, поможет людям,
страдающим заболеваниями суставов. За счет чего можно уберечься от покупки
обезболивающих лекарственных препаратов.
Экономия топлива проводится путем контроля уровня жара в
печи. Делать это можно самостоятельно, либо по установленным датчикам. После
достижения оптимальных показателей, подкидывание дров прекращается. Дальнейшие
действия заключаются в контроле прогорания поленьев.
Интерьерное дополнение
Деревенский стиль, может быть дополнен русской печью. Сочетание
бревен или бруса с
печью, выложенной из красного кирпича, создаст тепло и уют внутри здания.
Расположившись вечером возле открытого очага, насладитесь треском горящего
дерева или визуальным наблюдением процесса горения.
Преимуществ в ней предостаточно, но она не лишена и
недостатков.
- Небольшая копоть. Неправильный монтаж дымохода
или возникновение неполадок, приводит к просачиванию дыма внутрь дома, что
создает некомфортное условие для пребывания. - Угарный газ. Причина появления аналогична
предыдущему описанию, но последствия несколько отличаются. Отравление угарным
газом приводит к серьезным нарушениям здоровья. - Опасность открытого огня. Деревянные строения
нуждаются в специальной обработке и дополнительной установке экранирующих
заслонок. - Риск ожога. Об горячие кирпичи очень легко
обжечься. Поэтому, если в доме есть маленькие дети, рекомендуется устанавливать
ограждения. - Засорение дымохода. Дымоотводящая труба
нуждается в периодическом прочищении каналов от сажы. - Засорение колосников. Без периодической чистки,
подсос воздуха становиться хуже, а значит ухудшается горение топлива.
Сруб с печкой под ключ: выбор места для печи?
Располагают конструкцию в помещении, где жильцы проводят большую часть времени. Чаще всего – это гостиная.
- Если это помещение большое, то печь лучше расположить в центре – в этом случае теплый воздух будет равномерно распространяться по всей комнате.
- Если для очага выбрать место возле стены, то не все поверхности будут равномерно отдавать тепло, поэтому уменьшится общая теплоотдача. Для такого размещения можно выбирать угловые печи, которые занимают немного места и актуальны для небольших комнат.
- Если в доме есть несколько смежных комнат небольшого размера, то расположить печь можно в проеме между этими комнатами. Чтобы тепло распространялось равномерно, в межкомнатной перегородке делают небольшие отверстия. Усилить тепловой поток поможет конвекция воздуха с помощью вентиляторов.
- Пристенные печи устанавливают возле капитальных стен.
Дом сруб с печкой может иметь не больше четырех комнат. Если помещений больше или они большого размера, то делают две-три печи или планируют отопительную систему так, чтобы печь не была единственным источником тепла.
Важное правило!
В бревенчатом коттедже источники тепла размещают равномерно по всем помещениям. В местах установки источников тепла бревна начинают растрескиваться, потому что происходит активная сушка древесины. Чтобы избежать перекоса дома из бревна из-за неравномерной нужно избежать точечного нагрева.
Для сруба с печкой проект отопительной системы разрабатывается с учетом физических особенностей древесины.
Важные правила установки и эксплуатации печного оборудования
Если печь установлена правильно, если ее форма и размер соответствует типу строения, зимой будет тепло внутри даже в двухэтажном доме. Когда на втором этаже прохладно, жильцы часто закрывают его и переживают сильные морозы внизу, на первом этаже.
Наличие теплозащиты значительно увеличивает эффективность работы печного оборудования Источник ser31.ru
Если у дома нет теплозащиты, топить печку бесполезно. Суммы, потраченные на покупку топлива, будут растрачены впустую
Производя планировку дома еще на этапе строительства, важно заранее продумать утепление стен, пола, а также крыши, необходимо после возведения коттеджа устранить все мостики холода и сделать это с учетом установки печного оборудования
Тепловизор мостика холода Источник www.stroypomosh.com.ua
Ошибочно думать, что сооружение в небольшом коттедже (6 на 4 или 6 на 6) мощной печи позволит обеспечить создание комфортного микроклимата. Это не так: дров уйдет гораздо больше, при этом комнаты останутся холодными. Специалисты настаивают на выборе конструкции печи, размер которой соответствует объему имеющегося пространства.
Размер печи должен соответствовать размеру площади отапливаемых помещений Источник pechnik37.ru
Важно для установки печи сооружать отдельный фундамент. Нельзя производить сборку корпуса на единый фундамент здания
Он со временем садится, жилье при этом проседает по-разному. От этого печка способна перекоситься, на ней обязательно появятся трещины. В результате этого в жилые комнаты начнет просачиваться угарный газ. А это опасно для жизни жильцов.
Фундамент для печи заливается отдельно от фундамента основного дома Источник a.d-cd.net
Коротко о главном
Вариантов планировки коттеджей 6 на 6, 6 на 7 или 6 на 8 с печным оборудованием много. Чертежи могут меняться в зависимости от потребностей хозяев жилья.
Для создания эффективного отопления в зимнее время года целесообразней устанавливать печь прямо посередине здания, топку при этом важно разворачивать в сторону кухни, тогда удастся сформировать комфортный для проживания микроклимат. Отказ от конструкции традиционной русской печи в пользу «голландки» или «шведки» помогает высвобождать жилое пространство
Выбираются такие проекты домов, где отопительное оборудование полностью или частично выступает в роли межкомнатной перегородки
Отказ от конструкции традиционной русской печи в пользу «голландки» или «шведки» помогает высвобождать жилое пространство. Выбираются такие проекты домов, где отопительное оборудование полностью или частично выступает в роли межкомнатной перегородки.
Одна печь способна протопить и нижний этаж и мансарду, для этого нужно установить на втором этаже прямо в дымоходе дополнительный щиток.
Оценок 0
Современная русская печь своими руками: рекомендации
Для того чтобы печь вышла надежной, привлекательной и долго служила хозяевам, важно не только соблюдать инструкцию по укладке рядов, по и знать некоторые хитрости, которыми пользуются в работе опытные печники

Так, чтобы кладка вышла прочной и надежной, а печь эффективной и безопасной необходимо:
- Подбирать качественный кирпич без сколов и трещин, который, перед кладкой, нужно вымачивать.
- В местах установки литых элементов, следует оставлять технологический зазор между кирпичом и пластинами для расширения металла.
- Каждые 5-8 рядов делать противопожарную разделку в половину кирпича. Если места для кирпича не хватает, то для разделки следует выбирать материалы с низкой теплопроводностью (вермикулит, суперсил, силикат кальция).
- Швы в кладке следует делать не толще 7 мм.
- Для организации топки лучше применять огнеупорный шамотный (желтый) кирпич, который выдерживает температуры до 1600°C.
Перед тем, как начинать класть печь самому, профессионалы советуют изучить соответствующую литературу, если есть возможность, то понаблюдать за работой печника. К подготовке к работе следует подойти ответственно и основательно, ведь неправильно сложенная печь может стать причиной пожароопасных ситуаций, поставить под угрозу жизнь и здоровье всех жильцов дома.
Преимущества
Когда планировка хорошо продумана с учетом конкретной отопительной системы, то установка печи практически не зависит от стройматериала, из которого построено жилище. Она подходит как для деревянного, так и для кирпичного дома. Ее преимущество в том, что для отопления помещений всегда есть широкий выбор топлива: уголь, торф, дрова, даже картон и сухие ветки деревьев. Пользователь сам решает, чем топить, что более доступно и стоит дешевле.
Следующее преимущество — обогрев дома не зависит от отопительного сезона теплоцентрали, от аварийного ремонта и длительных перебоев в поставках топлива. Печь автономна, режим ее работы определяется самим пользователем, которому не нужен план сезонных отключений системы.

Планировка дома с печью 6×9 метров
Способность печи создавать уютную и комфортную атмосферу общеизвестна. Благодаря этому качеству с ней не способна сравниться никакая другая отопительная система. Приятно, сидя с книгой у печки, вдыхать запах смолистых дров и слушать их тихое потрескивание. Это напоминает далекие времена, овеянные романтикой. Кроме указанных достоинств, печку можно оборудовать так, что она станет оригинальным дополнением интерьера.
Особый шарм помещению придает русская печь. По теплоемкости с ней ничто не может сравниться. Она способна аккумулировать тепло, а потом постепенно отдавать его, поддерживая в избе постоянный уют и комфорт. В прошлом она выполняла варочно-отопительную функцию. Сегодня встречается довольно редко.
Только тот, кому по нраву деревенский дизайнерский стиль дома, решится украсить ею свои апартаменты. Правда, перевелись мастера-печники, которым не требуется чертеж для ее возведения.

Зато в последнее время проект дома с камином — обычное предложение строительных фирм. Это модное отопительное устройство обогревает, но нисколько не накапливает тепло. Используется больше как декоративный элемент.
Век технического прогресса внес свои коррективы. Сегодня обычным является дом с печкой, работающей не только на твердом топливе, но и на электричестве, газе, мазуте. Но самым доступным материалом отопки по-прежнему являются дрова.
Прочность.
Прочность стеновых материалов определяется предельным давлением распределённой нагрузки на испытуемый образец и характеризуется количеством килограмм сил (кгс) приложенных к одному квадратному сантиметру поверхности материала.
Так керамический блок Кайман30
имеет марку прочности М75, это означает, что один квадратный сантиметр способен выдерживать нагрузку равную 75 кг.
Значение марки прочности газосиликатного блока с плотностью 500 кг/м 3 , у разных производителей, колеблется в пределах от М35 до М50. Как следствие, согласно инструкции производителей газосиликатных блоков каждый третий ряд кладки следует армировать, как показано на фото ниже.

Кладка из керамических блоков Kaiman 30
армируется только по углам здания, на метр в каждую сторону. Для армирования используется базальтопластиковая сетка, закладываемая в кладочный шов. Трудоёмкое штробление и последующее укрытие арматуры в штробе клеем не требуется.
Кладочный раствор при монтаже керамических блоков наносится только по горизонтальному шву кладки
. Каменщик наносит раствор сразу на полтора-два метра кладки и заводит каждый следующий блок по пазо-гребню. Кладка ведётся очень быстро.
При монтаже газосиликатных блоков раствор необходимо наносить и на боковую поверхность блоков. Очевидно, что скорость и трудоёмкость кладки при таком способе монтажа только увеличится.
Также для профессиональных каменщиков не является сложностью пиление керамических блоков. Для этой цели используется сабельная пила, с помощью этой же пилы распиливаются и газосиликатные блоки. В каждом ряду стены требуется запиливать всего один блок.
2. Способность рассматриваемых конструкций сопротивляться теплопередаче, т.е. зимой удерживать тепло в доме, летом прохладу.
Декор
Пасторальному стилю свойственно большое количество декоративных элементов:
- текстильные изделия под ногами и на стенах;
- подушки;
- иконы;
- самостоятельно сшитые скатерти и кружевные салфетки;
- любая вышивка;
- и другие подобные украшения только приветствуются.
Они создают неповторимый уют и тёплую домашнюю атмосферу.
Но первоначальным этапом в создании умиротворительной атмосферы считают выбор цветового оттенка, который будет преобладать в стилистике дома. Особых ограничений не установлено, но для скромного, сдержанного и слегка грубоватого стиля кантри свойственны природные оттенки и приглушенные, неяркие тона с гармоничными вливаниями светлых оттенков. Также популярны пастельные оттенки.
Как делали русскую печь?
Русская печь – это традиционное русское изобретение, которое имеет богатую историю. Вот общий процесс того, как делали русскую печь:
-
Подготовка места: для постройки русской печи необходимо выбрать подходящее место и подготовить основание. Основание должно быть плоским, устойчивым и изготовленным из огнеупорных материалов.
-
Сборка кирпичной кладки: кладку русской печи начинают со сборки фундамента, который делается из кирпича и смеси из глины, песка и воды. Затем, на этот фундамент устанавливают основу печи, которая обычно делается из чугунной дверцы, железобетонного кольца или другого огнеупорного материала.
-
Строительство топки: далее строят топку – отсек в печи, где разжигается и горит топливо. Топка имеет дверцу, через которую загружают топливо и контролируют горение.
-
Кладка дымохода: затем строят дымоход – трубу, которая выводит дым и продукты сгорания наружу. Дымоход должен иметь определенный уклон и быть достаточно высоким, чтобы гарантировать хорошее тягонаправление.
-
Внутренняя отделка: после того, как кладка готова, следует обшить внутреннюю поверхность печи огнеупорными плитами и керамической плиткой, чтобы защитить печь от высоких температур и увеличить ее теплоотдачу.
-
Установка дверцы: последним этапом является установка дверцы топки и дымохода.
Конечно, процесс постройки русской печи может немного отличаться в зависимости от места и времени постройки, а также от мастера, который строит печь. Обычно процесс постройки печи требует определенного опыта и умения работать с кирпичом и другими материалами.